청주시는 홍골근린공원 민간공원 조성사업에 대한 환경영향평가와 전략환경영향평가를 동시에 진행 중에 있습니다.

도시관리계획으로 용도지역이 변경이 된 지역이죠.
기존 보전녹지지역이 제2종일반주거지역과 준주거지역으로 변경이 되어 전략환경영향평가도 같이 진행이 된다고 보시면 됩니다.
세부내용 살펴보겠습니다.
1. 사업개요 및 목적
1. 홍골근린공원은 2008년 12월 26일 최초 결정 이후 장기미집행 도시계획시설로 인해 개인의 재산임에도 처분과 이용이 자유롭지 못해 오랫동안 피해를 보고 있어 재산권 행사의 제약 해제 등을 위한 민원이 지속적으로 발생하고 있던 곳이었습니다.
2. 국토의 계획 및 이용에 관한 법률에 의거 (20년이 경과하는 시점인 2028년 12월 26일 자동 해제) 장기 미집행 도시계획시설인 홍골근린공원이 해제될 경우 공원 내 개인 토지 소유권자에 의해 무분별한 개발에 의한 도시난개발이 우려되고 있음
3. 근린공원의 본질적인 기능과 전체적인 경관을 고려한 공원시설을 조성하여 시민들의 삶의 질을 높이고 여가생활과 휴식을 위한 공간을 제공하고자 하기 위해 본 사업을 추진합니다.


4. 「 도시공원 및 녹지 등에 관한 법률 」 제21조의 2 (도시공원 부지에서의 개발행위 등에 관한 특례)에 따라 도시공원을 민간자본으로 개발하여 청주시에 기부채납 (공원면적의 70퍼센트 이상) 시 그 외 부지에 비공원시설공동주택 등을 조성할 수 있도록 하고 있으므로 민간사업자에 의한 도시공원조성을 실현하여 지역주민의 휴양과 건강증진 등 쾌적한 도시환경을 조성하고자 합니다.
5. 홍골근린공원 내 비공원시설부지를 대상으로 도시관리계획(용도지역) 변경을 통하여 합리적인 청주시 도시관리계획을 마련함과 동시에 도시공원조성을 통해 쾌적한 도시환 경을 조성하는데 그 목적이 있다고 밝히고 있습니다.
2. 사업 내용
1. 사업명 : 홍골근린공원 민간공원 조성사업
2. 위치 : 청주시 흥덕구 가경동 296-2번지 일원
3. 사업면적 : 203,177㎡
1) 수도시설 8,945 ㎡, 기조성공원 28,687㎡, 금회 도시공원조성 165,545㎡
2) 도시공원조성(특례사업) 면적 : 165,545 ㎡
공원시설 118,070㎡, 비공원시설 47,475㎡

3) 홍골근린공원 전체면적 중 수도시설(제척)및 기조성공원(존치)을 제외한 부지에 (165,545㎡) 대해 도시공원조성(특례사업) 계획을 수립함.

4. 사업시행자 : 홍골공원개발 주식회사
5. 사업기간 : 2023년 ~ 2026년
- 사업기간은 참고만 하세요. 부동산 경기와 건축 시장이 워낙 안 좋다 보니 현재 기준으로 2026년에 정확히 사업을 마칠 수 있을지 의문이 드는 건 어쩔 수가 없네요
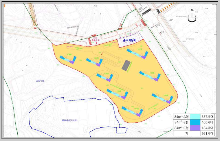
3. 토지이용계획(안) - 공원부지
1. 기 집행지 조성현황 : 수도시설 8,945㎡, 기조성공원 28,687㎡
2. 금회 도시공원조성(특례사업) 계획
1) 공원시설부지 : 118,070㎡
2) 비공원시설부지 : 47,475㎡



4. 토지이용계획(안) - 건축부지
1. 비공원시설 47,475㎡ 중에서 공동주택용지는 96.9%, 근린생활시설은 3.1% 로 계획을 하였네요.

2. 건축계획
1) 공동주택
계획세대는 921세대이며 , 대지면적 46,025㎡ 중 건축면적 7,538.57㎡ , 연면적 156,121,19 ㎡로 건폐율 16.38%, 용적률 229.51% 로 계획을 하였습니다.


2) 근린생활시설
근린생활시설 대지면적 1,450㎡ 중 건축면적 1,014.20㎡, 연면적 10,227.44㎡로 건폐율 69.94%, 용적률 427.67% 로 계획을 하였습니다.

더 자세한 내용은 아래 파일을 다운 받아서 보시기 바랍니다.
자료출처 : 청주시청

'부동산 정보' 카테고리의 다른 글
| 울산 남목일반산업단지 추진한다. 토지거래허가구역 신규 지정 (0) | 2024.02.13 |
|---|---|
| 전라남도, 철도 르네상스 시대를 연다. (0) | 2024.02.13 |
| 북충주IC 일반산업단지 조성사업 (0) | 2024.02.08 |
| 수도권 제2순환 고속도로 포천-조안 구간 개통 (0) | 2024.02.06 |
| 개발제한구역 노후.불량 주택 신축 허용, 개발제한구역 개정안 주요 내용 (0) | 2024.02.06 |